近日,武汉市自然资源和城乡建设局发布了落实建筑面积计算《新规》的相关事项。
一些之前不太明确的标准和建筑形式,全部以图文形式进行了标注。
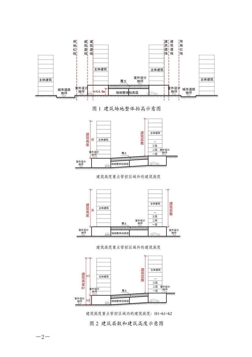
基本上跟去年9月网传版本非常接近,建筑场地抬高的部分计算楼层有一些变化,现在是【场地整体抬高层(含覆土)不 计入建筑层数和高度】
另外,就是大家关注的面积借用,也就是一些部位俗称的部分(赠送面积,得房率),也有详细解释。
1️⃣住宅户型设计时,不得出现房间镂空式设计或非功能 性凹槽
2️⃣住宅阳台、景观阳台不得与其上盖相距四个及以上楼 层,应与起居室、卧室、厨房等功能空间相连
3️⃣住宅建筑的公共部分、套内厨房以及非居住建筑不得设置飘窗
4️⃣每套住宅集中布置的设备平台应满足设施设备数量、 尺寸实际需求,并方便工作人员安装、调试、检修,不宜与卧室 相连,不得与飘窗嵌套
5️⃣建设工程规划(建筑)方案图纸应当按照建筑设计规 范标注建筑功能,不得出现“入户花园”、“花池”、“花架”、“装饰 性阳台”、“平台”、“不进人空间”等表述
🔴规则如何执行,这里简单概括一下:
1️⃣规则实行前报规了,没有取得《建设工程规划许可证》,可按原规划执行
2️⃣规则实行前报规了,且取得了《建设工程规划许可证》,但还未取得预售证的,可以申请按照现规则改规。
3️⃣原2024年6号文件《关于推进新型住宅设计创新试点工作的通知》中关于阳台、空中花园试点政策,以及及《武汉市 住宅阳台及空中花园规划管理细则(试行)》不再执行
如今的四代宅如火如荼,大部分都是以高赠送,高得房率让不少买家心动,如今新规的执行,是否对以后新建的产品规划有影响,我们拭目以待,个人觉得,四代宅不仅是空间和设计的优化,更是在传统公区和小区园林设计给了业主更舒适的居住体验和额外的休闲活动空间,新的规则,将来只会让产品越来越卷,越来越好








