趣说宋朝十八帝 之 宋徽宗:被推上错误职业的皇帝

宋徽宗赵佶
三、多才皇子(一)
宋徽宗赵佶虽然很小就失去了父母,但作为皇子,却依然按照皇家规矩受到了良好的教育,而且,或者正是因为自己是一名“孤儿”,或者生来就有艺术天赋,赵佶的学习成绩尤其是书法、绘画极好。
宋哲宗元祐八年(1093)赵佶十岁,这年的二月初五,垂帘听政的赵佶祖母、太皇太后高滔滔决定,让居住在皇宫的皇子们到宫外就学,以宋哲宗的名义下诏,“大宁郡王赵佖出外就学”,在以前一位皇子的住处设立了学舍,由两名大臣担任老师,四名宦官负责管理,宋哲宗给每位皇弟“颁赐”《九经》一部和孔子、孟子、荀子与扬雄的著作。
三月,高滔滔去世,宋哲宗亲政。次年,宋哲宗改年号为“绍圣”,一反高滔滔“听政”时推翻其父宋神宗推行的“熙宁变法”的做法,继承、继续推行“熙宁新法”。
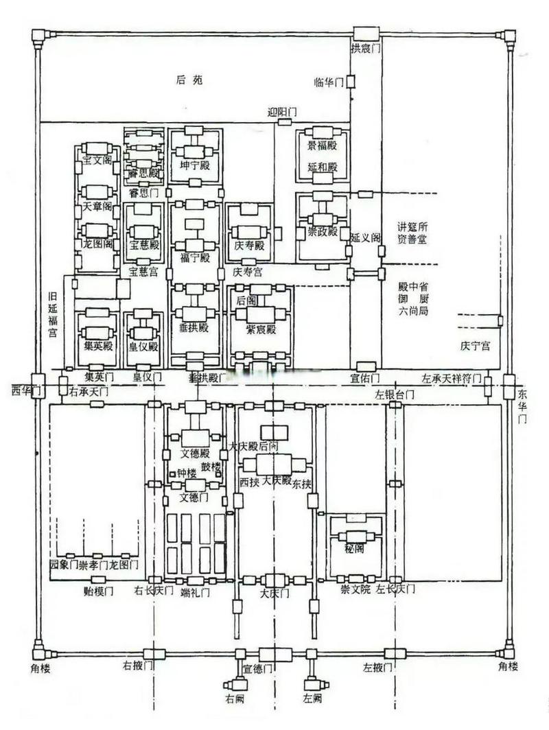
绍圣二年(1095),宋哲宗请高官推荐德高望重的长者担任皇弟们的“王宫侍讲”,傅楫、朱绂和何执中先后担任赵佶的“侍讲”,傅楫,“皇子赵佶就学资善堂[宋真宗于大中祥符八年(1015)为皇子赵祯即后来的宋仁宗创立,位于东京大内宣祐门东北的东太子宫建筑群 ,初设翊善、赞读、直讲等官职,后成为皇室子弟学习儒家经典和施政训练的核心场所],择师傅为说书,升端王记室参军,进侍讲、翊善大夫,中人輗事于府者,多与宫僚狎戏。傅楫独漠然不可亲,一府严惮之”,朱绂,“幼诵群书,轻视荣利,性乐施与,人感其惠”,“其立朝也,皆正色谠言,无所顾忌”,宋哲宗“嘉纳”其进谏,任命其为“诸王宫侍讲,再迁绂翊善”,何执中,“虽居富贵,未尝忘贫贱时,斥缗钱万置义庄,以赡宗族”,“绍圣中,五王就傅,选为记室,转侍讲”。
也许是赵佶的学习成绩好,或者受在其嫡母、宋神宗皇后向氏眼中“懂事”的影响,比他大五岁的哥哥宋哲宗对他颇为看重。
绍圣三年,十五岁的赵佶以平江(治苏州,今江苏苏州)、镇江军(治润州,今江苏镇江)“两镇节度使”官职封“端王”。
宋哲宗元符元年(1098)三月二十,十七岁的赵佶搬离后宫,住进自己的端王府。两天后,宋哲宗亲到赵佶府邸看望。
其后,赵佶多次参加朝廷举办的盛大典礼等重要活动,当年十一月,宋哲宗在京城汴梁(今河南开封)南郊举行“郊祀”即祭天大典,赵佶被选中担任“亚献”,即第二个向上天进献祭品,次年,宋朝收复被吐蕃据有、以今青海西宁为中心的青唐地区,赵佶又奉奉宋哲宗之命,到宋朝皇家祖庙“太庙”向列祖列宗报告这一重大胜利。

北宋皇宫内城概述图