
在通讯信息传输领域,仪器设备常面临户外、潮湿、水下等复杂使用场景,外壳的防水防护能力直接决定设备运行稳定性。IP68防水铝外壳凭借高防护、强耐用、易定制的核心优势,成为通讯仪器的优选防护载体,而防水铝外壳定制可精准匹配设备结构与场景需求,打造专属通讯仪器防水铝外壳。本文以通讯信息传输仪器防水铝外壳定制案例为核心,详解定制细节、加工工艺、材质选型与防水优势,展现专业定制服务的技术实力。

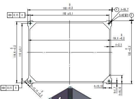
本次防水铝外壳定制项目专为通讯信息传输仪器打造,聚焦高等级防水与工业级适配性。项目选用L07A型号为基础定制,整体通讯仪器防水铝外壳尺寸为160*120*50mm,主体采用6063、6061优质铝型材,搭配ABS塑料上盖,表面提供喷砂皓月银、喷砂墨玉黑两种阳极氧化处理方案,核心达成IP68顶级防水等级,可满足粉尘、潮湿、浸水等极端环境下的长期稳定使用,为通讯信息传输设备提供全方位防护。

/
通讯信息传输仪器外壳细节展示






专业防水铝外壳定制需结合防水等级与部件功能,制定精细化加工流程,本次通讯仪器防水铝外壳的壳体、上盖、下盖采用差异化工艺,兼顾精度、密封性与外观质感,每道工序都为IP68防水性能筑牢基础。
壳体加工工艺:以6063-T5铝型材为基材,先锯切精准定尺,再经CNC精加工实现结构成型与孔位定位,攻牙工序保障组装螺孔精准适配;喷砂优化表面粗糙度,阳极氧化生成致密防护层,UV打印完成标识定制,最后标准化包装保障成品完好。

下盖加工工艺:6061铝合金经锯切、CNC成型后,手动拉丝提升质感,喷砂与阳极氧化强化防护,压铆工序优化结构密封性,从工艺层面杜绝缝隙渗水。

上盖加工工艺:ABS塑料上盖经锯切、CNC加工,手动拉丝、喷砂优化表面,氧化处理提升耐用性,UV打印实现个性化标识,与铝制壳体、下盖完美契合,形成全封闭防水结构。

本次IP68防水铝外壳定制采用铝合金、ABS、硅橡胶、不锈钢多元材质组合,精准匹配通讯仪器的防水、散热、信号传输、结构强度需求,各材质发挥专属性能优势。
6063-T5铝型材:壳体核心材质,导热性优异、加工精度高,阳极氧化后防护性强,兼顾散热与结构稳定性,避免设备高温影响信号传输。
6061铝合金:下盖专用材质,强度高、抗冲击性强,耐压耐变形,配合压铆工艺提升整体结构强度,适配户外复杂场景。
ABS塑料:上盖材质,重量轻、绝缘性好,无信号屏蔽干扰,保障通讯信息稳定传输,与铝制部件实现轻量化与防水性平衡。
硅橡胶自粘垫:核心防水密封材料,柔韧性强、密封效果好,填充壳体与盖板缝隙,满足IP68防水密封要求,耐高低温、抗老化。
SUS304不锈钢螺丝:防锈性能优异、紧固力强,潮湿、浸水环境下不生锈松动,长期保障外壳组装密封性。
IP68防水铝外壳的核心防护优势本次定制的通讯仪器防水铝外壳达到IP68顶级防水等级,依托工艺、材质、结构三重保障,具备三大核心优势:
1. 全场景防水防尘:完全阻隔粉尘侵入,可长时间浸水不渗水,适配户外、地下、水下等通讯传输场景,杜绝潮湿渗水导致的设备故障。
2. 工业级耐用性:铝合金阳极氧化层耐刮擦、抗腐蚀,硅橡胶密封垫抗老化,不锈钢配件防锈,整体外壳使用寿命长,适应恶劣工业环境。
3. 信号传输稳定:材质搭配合理无信号屏蔽,铝合金高效散热避免设备高温降频,保障通讯信息传输不间断。
防水铝外壳定制服务核心优势专业防水铝外壳定制服务聚焦通讯仪器个性化需求,提供一站式解决方案:
1. 定制化适配:可根据仪器尺寸、接口、功能需求,调整IP68防水铝外壳的结构、尺寸、防水等级,满足异形与特殊场景定制。
2. 高精度加工:CNC数控加工+精密工装,尺寸公差精准,壳体与配件配合紧密,无渗水缝隙。
3. 严品控交付:每款外壳均通过IP68防水检测,成熟加工流程可高效完成小批量、大批量定制交付。
综上,IP68防水铝外壳是通讯信息传输仪器的理想防护选择,专业防水铝外壳定制能打造更贴合设备需求的通讯仪器防水铝外壳,以高防水、强耐用、高精度的特性,为通讯仪器在复杂环境下稳定运行提供全方位保障。