时光漫步过宿命的转轮,覆盖住纷繁的凡世。若时光可以停留,我只想停留在这个时刻,听窗外的雨声、蛙叫、蝉鸣,做着自己想做的事。
本期带来的这套案例,可以说完美诠释了当代年轻人的生活观念。自由、舒适、品质、社交。尤其是在高压的生活环境下,家不仅仅是一个温馨的避风港,更是展示自我,创造美好回忆的一个居心地。
由于这套房是爷爷奶奶送给屋主的,所以在空间设计上,既通过中古元素营造出了老房古朴的气氛,又注入新鲜、自由、活力的气息,从而打造出了一个极具品位的“宝藏”居所。

本案坐标西安,面积90㎡,屋主是一位90后小姐姐,热爱生活,注重细节和品质,希望家是一个能真正放松身心,尽情享受生活的地方。
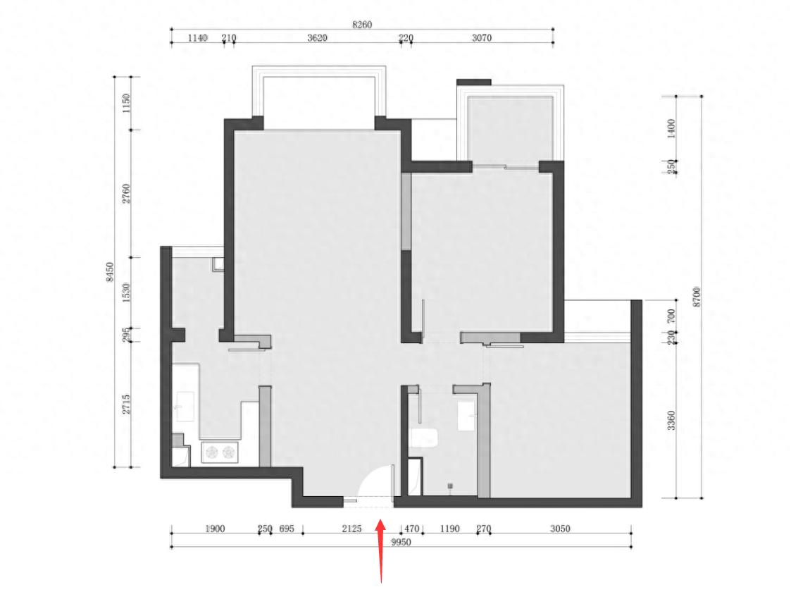
原户型为常规的两居室格局,正常来说一个人生活足以。不过相较于传统家庭,90后的屋主也难免会有自己的想法和喜好,所以在二次改造时,还是对结构进行了一些调整。

改造亮点:
1、厨房做开放式设计,与客餐厅形成一体。
2、原主卧与客厅打通,并改成多功能间,形成洄游动线。
3、扩大卫生间墙体,做干湿分离布局。
4、小阳台整体抬高,打造出一块休闲区。

舒缓的氛围,温暖的基调,以及大量中古元素的增加,仿佛一进门时光就静止了,让人卸下疲惫,沉迷其中。
玄关柜设计在了进门左侧,通体到顶的结构,60cm的柜体深度,无论是日常鞋履,还是日杂衣物,都得到了妥善的安置。

通过玄关就是开放式的餐厨区,奶油色的墙顶面,暖白色的L型橱柜,既在空间色调上做到了相得益彰,又营造出了温馨、明亮的氛围。
除此之外,当橱柜遵循人性化动线设置功能区,以及所有电器都做嵌入之后,不仅让日常操作更加得心应手,又在视觉上做到了整洁秩序。

一个人独居,无需一个标准的餐厅。一张中古的实木圆桌,一把时尚的潘通椅,反而让空间在灵活、松弛中,彰显出了独有的用餐仪式感。
不仅如此,当中古与时尚元素结合之后,既增强了设计感,又碰撞出了精致的腔调,无论是日常简餐,还是与朋友小聚,都给人一种流连忘返的舒适感。


一体化的空间定位,非常规的沙发布局,以及灵活的动线处理,无不彰显着自由、慵懒的生活形态,尽情享受下一秒的安稳时光。
为了让空间看起来更加温暖亲切,地面选择了浅木色地板,再叠加上中古元素与绿植,似乎整个空间都充满了自然与生命力。

轻盈的中古沙发、带有日式情怀的纸吊灯、定制的手工茶几、以及轻柔的梦幻帘,每一件单品的选择似乎都是空间中的主角,不断诉说着生活的美好。

墙面挂上了一块手工波斯地毯,不仅装饰性很不错,还为空间增添了一丝文化气息,且与地面的地毯做到了交互呼应。

客厅一侧增加了一组置物架,并且摆满了各种“藏宝”。这些小物件,既见证了屋主的一些人生经历,也将空间衬托得更加立体了。而一台移动的画框电视机,也为空间保留下了基本的视听功能。


为迎合空间基调,主卧刻意选择了一款胡桃木+玻璃材质的门,再搭配青铜色的拉手,复古又高级,且看起来相当有品质感。

作为睡眠区,设计上其实并没有运用过多的装饰。不过半腰素描壁纸+护墙板的床头造型,却也依然让空间做到了精致,且不失艺术气息。
除此之外,姜黄色的床品,以及温暖的灯光,也为空间衬托起来一抹舒适柔和的质感,从而让睡眠更有质量。


采光最好的阳台做了地台设计,再通过轻柔的窗帘烘托,立马就构建出了一个惬意安然的氛围。一盏灯一本书,让生活与四季悄然相遇。


当原有的主卧改成功能间之后,整个空间动线也形成了洄游。无论身处在哪一块空间,都可以自由穿梭,极大缩短了生活动线。

卫生间墙体在原有的基础上,进行了延长处理,并以此做了干湿分离布局,让日常生活更加高效,且提升了空间的整洁度。

本案就分享到这里,作为一套独居住宅,整体看下来,无论是结构改造,还是功能定位,又或者空间色调,都十分符合年轻人的审美和生活方式,且处处都透着不俗的品位。所以独居的朋友,也可以来学习参考下,真的很不错。