








光线是时间最柔和的证明。当光照耀在物体上,空间便有了暖意,时间也显现出形态。设计者从“凝固的时光”出发,将空间故事延伸到哲学层面,通过细腻的细节、浪漫的气氛、优雅的比例和协调的色彩,以简约的方式表达精神的充实,营造出艺术而自由的生活环境。


窗帘和镜子等元素让阳光在空间中反射出多变的光影,产生时间流动和空间变化的感觉,在小小天地里尽显风华。

设计不以繁复见长,而是通过光、材质和情绪的共同作用,形成可感知的生活哲学。运用完美的法式拱形曲线和大面积留白,呈现出强烈的视觉冲击,与宝格丽壁炉构建理性与情感的交流,既传统又当代,在秩序中蕴藏温情,在极简中暗藏仪式。



空间展现出“松弛而高级”的生活态度。中古家具带着岁月质感,以从容的姿态与经典百叶门相对,仿佛时光流转,百年一瞬,法式生活不断萌发新意,也坚守永恒的优雅格调。




餐厅是温馨的聚会场所,在日复一日的烟火气中品味人生百态,味蕾随四季更迭而苏醒。梦幻的光影洒下柔和的光芒,如薄纱般轻轻笼罩。定制艺术蜡烛、银饰器皿、艺术吊灯和不规则几何餐椅等,在不同层次上诠释自由精神的具体化。



复古的器皿在时间的缄默中为空间渲染一层怀旧滤镜,色彩的碰撞与和谐,艺术品的陈列与留白,共同构筑繁华都市中的一方精神乌托邦。


沉淀岁月痕迹,雕刻时光足迹,书房中收藏着世界各地的艺术珍品与书籍,宛如一座时间博物馆,容纳历史的韵味与现代的优雅。每件藏品都在低语中讲述过去与现在的故事。






在城市繁华处,营造一处宁静的诗意。主卧设计将场域的包裹性与生活的内敛性巧妙融合。一侧是法式浪漫的经典色调,另一侧是典雅的艺术品。在柔和温暖的基调中,优雅从容与尊贵共舞,惬意、浪漫、自在、自如。


艺术挂画的繁丽花纹散发自然气息,将法式复古与现代审美完美结合。精致的艺术吊灯诉说时间的风华,精雕细琢的家具线条勾勒摩登岁月的轮廓,每一寸空间都承载未来生活的期待,令人沉醉于法式魅力。





温润的家具线条优雅,彰显不凡品味。光线洒落,交织出静谧而富有格调的氛围,仿佛时光放缓脚步,光韵轻漾,如岁月低语,沉稳而内敛,舒展艺术梦想。





时间与艺术共同雕刻的优雅意境。张弛有度,静谧深邃,浸润着力量,也轻柔如风。




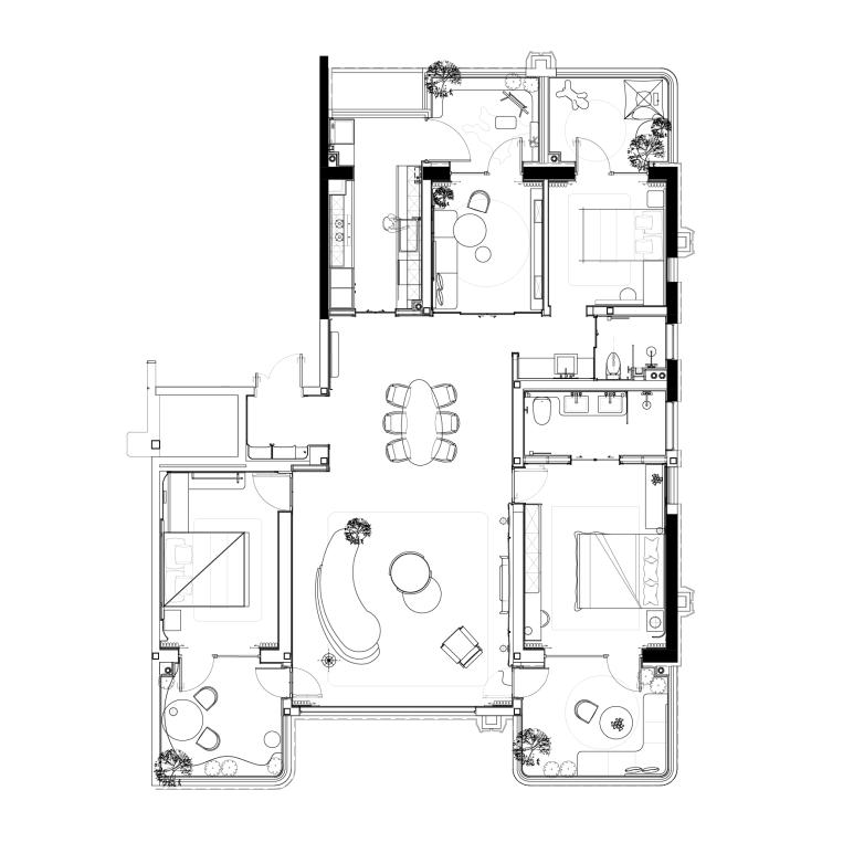
平面布置图
项目全名:郑州招商 · 揽阅
项目地址:中国 河南
软装设计:元禾大千
硬装设计:元禾大千
空间面积:139㎡
甲方单位:招商蛇口郑州公司
摄影团队:一千度视觉摄影