■ ■ ■
💥:本期更新啦!
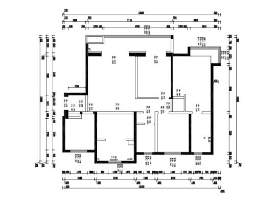
地址 | Address:西安• 御锦城16期
面积 | Square Meters:141㎡
户型 | Apartment :四室两厅两卫
类型 | Types of:毛坯房装修
风格|Style:意式轻奢风
❤装修心得:其实屋主比设计师更清楚自己的房子需要怎么设计,因为只有居住者才知道家庭成员的生活习惯和需要,我一直觉得设计首先是要满足居住者生活的便捷舒适,而后再谈风格的独特性,所以双方的沟通更重要,做一位会倾听的经验型设计师,合拍也很容易。[赞R]
本案设计策略✍:拆掉一堵墙,空间秒变大横厅,拆改了但又不会牺牲每个空间的功能性,方案就是值得的。
1⃣ 客厅-打通客厅与相邻次卧,客厅就形成大横厅+开放式书房,一个空间两用,通透性也更强。
2⃣ 餐厨-厨房和餐厅中间的门做【口袋门】,完美系统的好处就是可以让厨房是封闭的,收起来又可以让厨房是开放式格局。
3⃣ 阳台-正常做收纳+洗衣家政区,晾晒区隐藏在墙后面,干净整齐。
4⃣ 主卧-270°格局,空间很充足,可以设计多种布局,根据屋主需求,做的是起居室+L型衣帽间。
5⃣ 主卫-正常的三分离格局,只是给主卧又增加量一台洗衣机使用。
施工落地敬请期待........
✅御锦城16期141㎡这套轻奢风格的项目,目前正在施工中,喜欢风格或同小区屋主🉑问。[斜眼R]
西安装修设计 说说我爱的装修风格 西安毛坯房装修 意式轻奢风 我的装修日常 原创设计案例 西安室内设计师 小家DIY大赛









