💥新作首发-[赞R]
【万科东望】小区128㎡婚房装修记❤
方案已通过,是业主想要的极简奶油风呀!😉
地址 | Address:西安• 万科东望
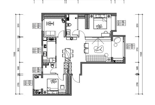
面积 | Square Meters:128㎡
户型 | Apartment :三室两厅两卫
设计 | designer:李晗.原创
风格|Style:极简奶油风
✔1:居住者:两人住(已结婚后期会要小孩)
年轻住宅,房子的使用功能和颜值要兼备,设计师要求审美在线。✌
✔2:改造方案
改造一:改变了客卫干区的位置,将干区挪在卫生间正对这一侧,和鞋柜做背靠背设计,避免了面盆镜子正对次卧门的问题,且和鞋柜做成一个整体,设计感和实用型双升级。💪
改造二:餐厅位置,打掉餐厅挨着客卫的墙,干区移位后,这边变成客卫步入过道,餐桌就可做成餐岛一体。(见上图)
改造三:主卧卫生间和衣帽间区域打散重新布局,使用起来更舒服。
改造四:根据屋主生活习惯和爱好,三个房间布局为主卧屋主两人起居室,门口次卧儿童房(前期父母或朋友偶尔居住)、次卧的阳台为洗衣晾晒区,西向小次卧多功能室(健身+影视室),客厅阳台为休闲景观阳台。
【还是那句话,房子的设计方案会有很多种,但是每家的装修要求不同,实用的设计是根据屋主的生活习惯和家庭成员来合理分配布局哦[扯脸H]】
✔3:色彩搭配
注重收纳的同时,色彩搭配简洁高级,整体风格为奶油风,但硬装软装的设计线条又做极简处理,对比厚重的奶油风,极简+奶油风元素,出来的整体风格就很干净清爽。✅
-
遇到合拍的设计师,从见面聊想法到成交,仅一周的时间就完成了,双向奔赴永远能打动人,装修也是。[斜眼R]
如果你也喜欢极简风,那就快来抄作业吧!📝
-
原创设计案例 西安毛坯房装修 西安装修设计 婚房装修 温瞳西安设计师 装修效果图 极简奶油风装修 我在搞装修













