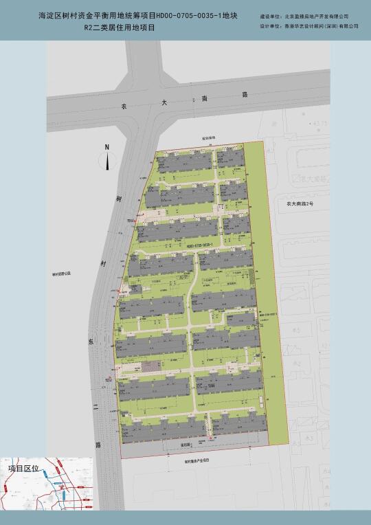
1,自南向北排布,一共规划16栋住宅楼,为4-6层洋房,4层是叠拼。所有楼栋都有下跃户型。
2,户型大概是180、220、260、320平层,以及叠拼400-500平。
3,梯户情况。1-8号楼一梯两户,9-14号楼为两梯两户,15号楼一梯两户,16号楼一梯两户➕两梯两户。9/10号楼南向入户,其余全部为北向入户。1-8号楼入户大堂挑高3层,9-16号楼为1层。
4,室内预计3m层高,有了朱房双子的对比这可差点意思
5,小区正中间7和9中间、8和10中间有3个下沉庭院和景观廊架,会所面积很大。
6,化粪池在10号楼和12号楼中间,后续选房可以关注下
7,社区设计了4个出入口,西侧一个人行主出入口,两个个地库出入口;南侧一个人行出入口。
8,楼排的比较密,容积率只有1.6,但是16栋楼塞进去,东侧、南侧楼基本就是压死红线排的。实际容积率有1.955,楼间距比较近,南北就20多米,东西7m。但因为楼栋低,所以采光、视野不太受影响。

