
西安中海未来之境项目的开发商是西安中海海新房地产有限公司,物业是中海物业管理有限公司。以下是详细介绍:- 开发商——西安中海海新房地产有限公司:该公司是中海地产在西安的项目公司之一。中海地产始创于1979年,至今已有44载深耕历程,足迹遍及全球90余座城市,匠心铸就超过3000个精品项目,成为中国房地产行业的品质标杆。在西安,中海地产先后打造了曲江大城、开元壹号、长安府、昆明路9号等多个标杆楼盘,以过硬的质量赢得口碑,更以超预期交付树立行业新标准。
- 物业——中海物业管理有限公司:中海物业拥有国家一级资质,以24小时全天候响应的服务模式,实现智慧服务升级,业主满意度高达0.98,领先行业。其服务内容涵盖安防维护、清洁、维修等多个方面,能为业主提供全方位的贴心保障,从细微之处尽显专业温度,在西安已得到广大业主的认可。该项目的物业费为3.8元/㎡·月。

西安中海未来之境项目沙盘展示了其在区域位置、小区规划、户型布局等多方面的信息,以下是详细介绍:
- 区域位置 :在沙盘上,中海未来之境位于高新CID瞳芯一环,紧邻未来之瞳。“成章路-星虹一路”构成了瞳南板块的超级十字路口,周边有20余栋超百米摩天地标建筑,以及未来之瞳大剧院等文化设施。沙盘还会标注出地铁12号线(规划)、S13(远期规划)等轨交线路,以及高新玫瑰one(在建)等商业配套的位置。

- 小区整体规划 :项目占地约78.58亩,容积率为2.4,共规划14栋楼,包括3栋小高和11栋高层,全部为2T2设计。沙盘采用“围合式”布局,能直观看到中庭景观和最大约80米的奢阔楼间距,体现了景观资源的均好性。

- 园林景观布局:沙盘上可看到“一园四境”的园林景观设计,有中央水景,水之境、花之境、森之境、光之境四大美学空间,以及浮岛水景等八大景观组团,还通过化路为园的设计手法,打造了富氧景观。

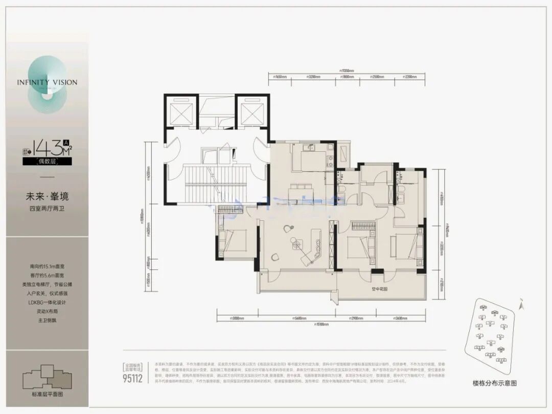
- 户型分布 :户型建面约133-235㎡,沙盘上会有楼栋分布示意图,标明不同户型所在的具体楼栋和位置,如133㎡户型可能分布在某些特定楼栋,235㎡大户型则可能位于景观较好的位置。



- 内部配套:沙盘上会展示小区内的三大生活会所位置,其总面积近2000㎡,提供圈层社交、运动健身等功能。部分楼栋一层的架空层泛会所和负一层的下沉式会所区也会在沙盘上有所体现。



西安中海未来之境项目优缺点明显,具体如下:
- 优点
- 地理位置优越:项目位于西安市高新区成章路与星虹二路东北角,东侧紧邻未来之瞳超高层集群,处于高新CID地标最近的“瞳芯”一环位置,地段稀缺性高。
- 交通便利:周边有地铁6号线(西电科大南校区·未来之瞳站暂未开通),还有在建的地铁15号线、规划中的地铁12号线以及高新云巴(试运行),交通出行便捷。
- 配套设施丰富:商业方面有高新玫瑰ONE(在建)、永安渠商业街区(在建)等;生态上有约450亩未来之瞳生态公园、中轴公园等;教育资源有中创区在建小学、中创区待建初中;医疗方面有国际医学中心、高新中医医院等。

- 产品品质较高:项目容积率为2.4,规划了3栋小高和11栋高层住宅,全部2T2设计,户型建面约133-235㎡。小区内有一层部分楼栋架空层泛会所、负一层下沉式会所,园林景观有中央水景、四大美学空间、八大景观组团等。

- 缺点
- 周边设施建设进度缓慢:虽然周边规划完善,但部分设施如永安渠商业街和地铁6号线尚未完全建成开通,当前生活便利性有待提升。
- 价格较高:目前在售均价为2.5万元/平方米,房价相对较高,对于预算有限的购房者压力较大。
- 设计存在争议:部分购房者认为该项目设计感不够强,植物选择和景观设计不如其他楼盘。
如果你是改善型住房需求者,且预算较为充足,对地段、配套的未来发展有信心,那么中海未来之境是一个不错的选择。毕竟从三期规划配套来说位置还是不错的。但如果你预算有限,或者希望当下就能享受成熟的周边配套,可能需要谨慎考虑。或者替代其它区域位置。此外,在购房前建议实地考察项目,关注细节和潜在问题,同时了解开发商对于存在问题的解决方案。