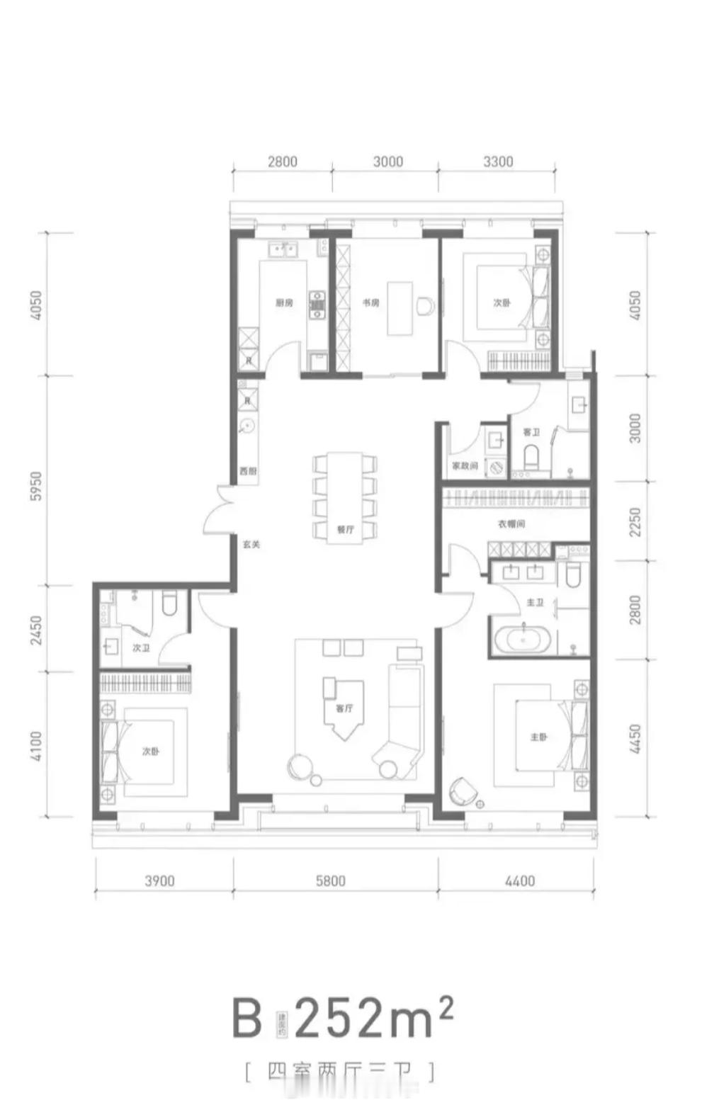
现在房子除了边厅和南向四面宽,基本上都是四叶草+LDK餐客厨一体。这种户型好在通透,但最大的问题就是餐客厅不分开+没有入门玄幻,进门就见厅,太无仪式感。融创这设计我真爱了,进门做了个悬浮式玄关柜,顺势直接一体化做了个U形吧台,对于爱喝酒朋友真太友好了,然后用格栅和餐厅做了分割,又不影响采光!真的,太nice了!



现在房子除了边厅和南向四面宽,基本上都是四叶草+LDK餐客厨一体。这种户型好在通透,但最大的问题就是餐客厅不分开+没有入门玄幻,进门就见厅,太无仪式感。融创这设计我真爱了,进门做了个悬浮式玄关柜,顺势直接一体化做了个U形吧台,对于爱喝酒朋友真太友好了,然后用格栅和餐厅做了分割,又不影响采光!真的,太nice了!


