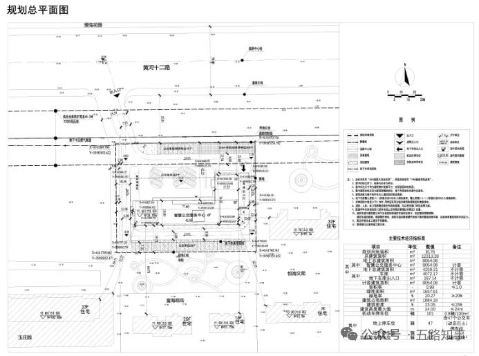
定了!就在滨州黄河十二路! 11月18日,《滨州智慧公交服务中心规划设计方案》公布:(图一图二) 山东滨州智慧公交服务中心项目位于黄河十二路以南,渤海十八路以东。规划用地面积为8176平方米,总建筑面积12313.39平方米,计容建筑面积8054.08平方米,容积率0.99,绿地率20.27%,建筑密度23.05%。 该项目位于滨州富海观岳小区的正北侧。该中心的出入口位于项目西北角(望海花园南门正对面)。 建设单位为滨州公共汽车有限公司。 来源:滨州市自然资源和规划局





定了!就在滨州黄河十二路! 11月18日,《滨州智慧公交服务中心规划设计方案》公布:(图一图二) 山东滨州智慧公交服务中心项目位于黄河十二路以南,渤海十八路以东。规划用地面积为8176平方米,总建筑面积12313.39平方米,计容建筑面积8054.08平方米,容积率0.99,绿地率20.27%,建筑密度23.05%。 该项目位于滨州富海观岳小区的正北侧。该中心的出入口位于项目西北角(望海花园南门正对面)。 建设单位为滨州公共汽车有限公司。 来源:滨州市自然资源和规划局




