由长江实业集团及港铁公司携手策划的港岛南区地标性项目「BLUECOAST」系列位于港岛南区传统豪宅地段,毗邻深水湾、浅水湾及寿臣山,经港铁黄竹坑站两站直达核心商业区金钟,地段价值不言而喻。

现场实景拍摄
项目合共提供1,200伙分层住宅,涵盖2至4房多元户型。现在已到收官阶段,剩余的4房以现房形式发售,现在所见即所得。
传奇销售数据奠定豪宅地位
自2024年4月开售以来,凭借其无可比拟的豪宅地段优势及匠心设计,屡创销售佳绩。首轮销售累收逾2.8万票,一度成为2024年票王,并于8日内售出540伙,创下100亿的骄人销售成绩打头阵。全系列沽出1,139伙,总套现金额高达198亿港元。
四房大宅备受追捧呎价创新高
踏入项目收官阶段,焦点落于极具稀缺价值的四房大户。这批单位自以现楼形式发售以来,市场反应热烈。2026年开年至今仅两个月,四房户型已透过招标方式售出25伙。
其中,早前售出的一套单位,更以4,231.05万港元的成交价及每平方呎33,500港元的成交呎价,创下项目售价及呎价新高,足见市场对优质海景大单位的渴求。

珍藏四房海景大宅最后59席
「BlueCoast」系列珍藏四房海景大宅占全盘最少,约整个项目10%,现仅余最后59伙,。全数采用子母门设计,气派十足,备有观海露台,可饱览深湾游艇会及香港仔海湾一带景观。

客饭厅面积高达约300-320平方呎

第1座高层4房户主人套房备有转角窗
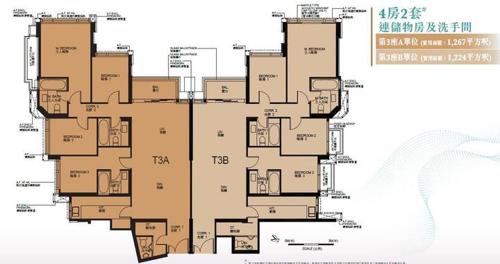
第1座(四房一套连储物室):
位于项目最前端,实用面积1,263至1,267平方呎。单位以巨型客饭厅为最大亮点,厅区面积高达约300至320平方呎,间隔分明,宽敞实用。客厅连接落地玻璃门,将自然光线与室外景致融合,营造出极具通透感的居住空间。


第3座(四房双套连储物房及洗手间):实用面积1,224至1,267平方呎,提供更高私隐度的套房布局。A、B室四房双邻单位,可合并打造为约2,500平方呎的奢华大平层。实现双邻变一户的豪宅格局,满足大家庭或多功能用途的需求。

所有四房户型的主人套房设计同样讲究,放置双人床后仍可三边下床,空间感十足。客房区域与主人房区分明确,倍添私隐;所有客房均预留衣柜位,部分客房更备有转角窗设计,进一步提升室内采光度与景观视野。
国际级厨配彰显豪宅匠心

为匹配豪宅用家的高标准要求,全数四房户均采用德国顶级品牌LEICHT厨柜,并配备电动铰门设计,尽显细腻工艺。厨房家电全线选用德国品牌Gaggenau,包括雪柜、抽油烟机、煤气煮食炉、电磁炉、蒸炉、焗炉、洗衣/干衣机及酒柜,总零售价值高达港币113万元,体现发展商对高品质生活的追求。
顶级会所与完善交通缔造豪宅典范
作为港岛南岸大型发展项目,「BLUECOAST」的交通便捷性无可比拟。住客可经香叶道入口的24小时风雨连廊,乘搭专属升降机「BLUESTAR」直达住客平台,或迅达商场THESOUTHSIDE1楼的港铁入口层,步行一分钟即达黄竹坑站,两站直达金钟,三站接通中环及尖沙咀。


项目自带的商场THESOUTHSIDE是港岛南区大型生活地标,楼高五层,汇聚约130间商铺、餐厅及英皇戏院。BLUECOAST买家更可尊享英皇戏院一年VIP会籍,全年购票享七折优惠。

此外,项目不惜工本打造多元化住客双会所「BIOPHILIAREALM」,并可兼享「港岛南岸中央住客会所」内的设施,合共提供19项室内外玩乐体验,包括室外泳池、健身室、蒸气桑拿及以东西文化为主题的宴会厅,满足现代家庭对健康生活与社交娱乐的全方位需求。
「BLUECOAST」系列四房海景大宅现已开放现楼示范单位,买家不仅可亲身体验「所见即所得」的豪宅质素,更能把握入主港岛南岸的最后黄金机会。

[购房资讯轻松享,快来关注乐居网]