滕北又一楼盘工程设计方案公示。
滕州市北辛路片区城市更新项目(冯河区域A区)建设工程设计方案公示。
容积率2.56,是一个高层项目,小区的位置还是不错的,距离北辛中学很近。
这个项目也很大,是城建集团2026年的一个重点项目,你看好这个楼盘吗,这个小区,大概会卖多少钱呢



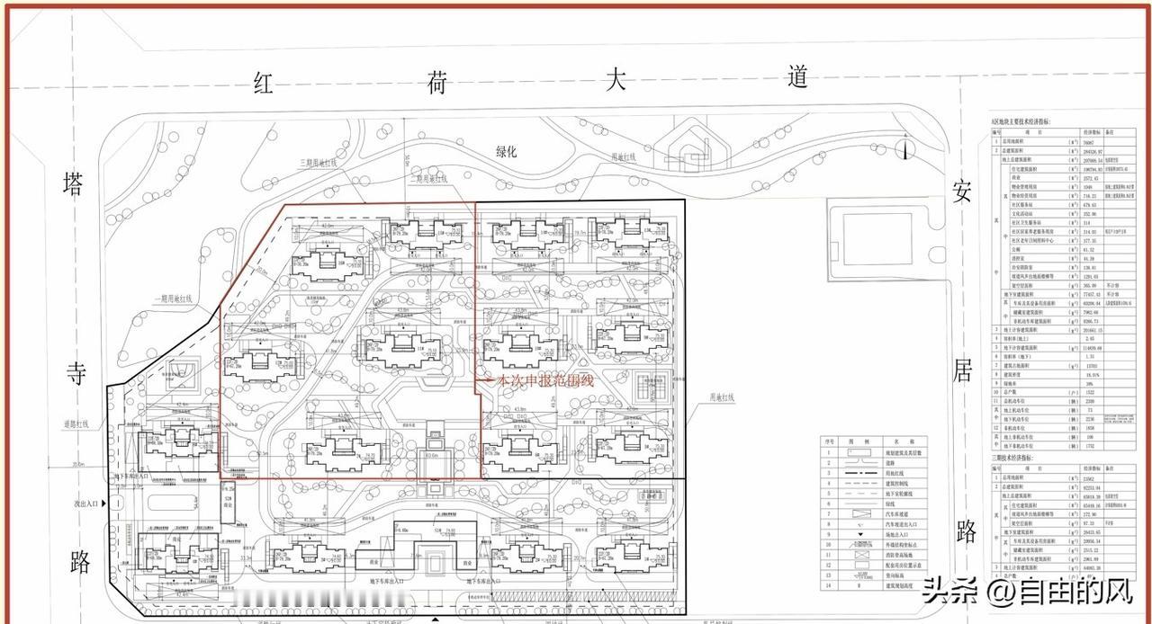
滕北又一楼盘工程设计方案公示。
滕州市北辛路片区城市更新项目(冯河区域A区)建设工程设计方案公示。
容积率2.56,是一个高层项目,小区的位置还是不错的,距离北辛中学很近。
这个项目也很大,是城建集团2026年的一个重点项目,你看好这个楼盘吗,这个小区,大概会卖多少钱呢


