最近刷到一位合肥业主的装修案例,把洗漱台从卫生间里“搬”了出来,还顺便把阳台的洗衣柜也“请”到了旁边。原本只有一个卫生间的家,硬是整出了“三分离+洗衣房”的神仙布局,评论区全是“早知道我家也这么装”的感叹。
这到底是怎么做到的?

咱们今天就好好扒一扒。
单卫家庭的“痛点暴击”:洗漱抢位、洗衣绕路,谁没经历过?对很多只有一个卫生间的家庭来说,“早高峰”的混乱堪称日常——老公急着刷牙,老婆要洗头,孩子还等着洗手吃早饭,三个人挤在不到3㎡的空间里“抢位置”;更头疼的是洗衣动线:从卧室拿脏衣服,得穿过客厅、餐厅到阳台,晾完衣服又得原路返回,遇上梅雨季衣服难干,烘干机占了阳台半壁江山,连晒被子的地方都没了。
这位业主的巧思,正是瞄准了这两个“痛点”:把洗漱台从卫生间里“外置”,再把阳台的洗衣柜“挪”到洗漱台旁边,原本割裂的功能区瞬间串联成线。用她的话说:“现在洗完澡直接把脏衣服塞进洗衣机,烘干后转身就能叠进衣帽间;早上我和老公各用一个洗漱台,孩子在旁边洗手,再也不用‘限时抢位’了。”
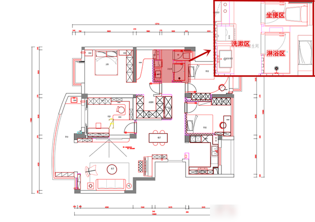
从“乱成一团”到“动线丝滑”,关键设计细节全公开第一步:三分离卫生间“腾空间”业主家原本的卫生间做了三分离设计——用隔墙把洗漱区、坐便区、淋浴区彻底分开。
独立出来的洗漱区原本只放了个台盆,显得空荡荡;但业主灵机一动:既然空间空着,不如给洗衣机和烘干机“腾位置”!
这里有个关键细节:水路不用大改。

因为洗漱区本身就有上下水,直接把洗衣机的进排水管接过去就行,安装成本比单独改阳台水路低了一半。
第二步:洗衣柜与洗漱台“二合一”,收纳直接拉满洗漱台旁边的洗衣柜,才是这套设计的“灵魂”。根据实际使用需求,业主做了5层收纳规划:- 洗衣机/烘干机位:中间预留刚好能塞下洗烘套装的位置,空间小就叠放,空间够就并排,既省地又好看;- 顶部吊柜:高度做到2.2米,专门放浴巾、换季衣物等不常用的杂物,比堆在阳台干净十倍;- 墙面功能区:装了电热毛巾架挂湿毛巾,脏衣篓随手扔换洗衣物,熨衣机就挂在伸手够得到的地方,洗衣流程一步到位;- 壁龛收纳:洗漱台侧面的墙面挖了壁龛,牙膏、洗面奶、梳子全放这儿,拿取比开柜门快;- 侧柜抽屉:下部分装抽屉,洗衣液、柔顺剂、漂白水分类放,再也不怕瓶瓶罐罐“打架”。
第三步:防溅水、好清洁,细节决定体验感很多人担心洗漱台和洗衣柜挨太近会溅水,业主的解决办法很聪明:把洗漱台的岩板台面向上延长了10公分,形成一个小“挡水沿”,水根本溅不进壁龛;洗衣柜底部特意悬空20公分,扫地机器人能直接钻进去,打扫卫生再也不用挪柜子。
这设计到底“香”在哪?用过的人都说“后悔装晚了”首先是动线效率翻倍。
以前从卧室到阳台洗衣要走15米,现在从卧室到洗漱区洗衣只需要5米;洗完澡换下来的脏衣服不用抱到阳台,直接扔进旁边的洗衣机;烘干后的衣服转身就能叠进衣帽间,全程“零绕路”。
其次是空间利用率暴增。

阳台空出来的位置,业主摆了个小茶桌,种了两盆绿萝,原本堆满洗衣机和杂物的“杂乱角”,变成了全家人喝茶晒太阳的“治愈区”。
更关键的是生活体验升级。

家里有娃的都懂,孩子的内衣袜子要手洗,以前得端着盆子去卫生间,现在洗衣柜台面装了石英石搓衣板,手洗直接在台上完成;大早上夫妻两人各用一个洗漱台,再也不用“限时刷牙”;冬天洗完澡,电热毛巾架上的毛巾还是热乎的,幸福感直接拉满。
想抄作业?这3个坑千万别踩!结语:装修不是“堆功能”,是“把日子过舒服”这位业主的设计,其实戳中了当代家庭装修的核心:不是盲目追求“大”或“贵”,而是把每一寸空间用到刀刃上。从“抢厕所”到“各用各的”,从“绕路洗衣”到“一步到位”,看似简单的改动,背后是对生活细节的精准把控。
或许未来,会有更多家庭从“有地方用”转向“用得舒服”——而这种“洗漱+洗衣”的组合设计,可能就是一个不错的起点。
毕竟,装修的终极目标,不就是让日子过得更顺、更暖吗?