采用天然理石打造的背景墙,有着浑然天成的肌理,稳固的拼接构造出水墨画面,形成美的视觉。



在黑白基调的色彩中,加入阳光的明媚,调和出暖白色的氛围,铺垫出宁静的环境。


家是生活的体现,柔和的线条、几何的体块、合理的动线,融合在一起,在原始的基础上建立出生活的氛围,这就是家的意义。





曲直交错的构造,搭建出和谐的观感,随着层层递进的手笔,填充出丰盈的状态,设计的巧妙加上灵动的思绪,让每一个角落都带有了生命力,成为家的一部分。


大体量的空间映射出人们对自由的向往,随心随性的发挥打破常规的束缚,让设计显得更加灵巧。



设计师将空间当成瑰宝来打磨,每一次的重解、构造都显得恰到好处,在多方平衡之下,最终形成了既美观又舒适的宜居空间。


迂回的线条,引发人的探索欲,增添家的神秘性,让居住者时刻能发现新的亮点。高低的布局,色彩铺垫的结构,让一切变得更有可能。

以静衬灵动视野心境 赋能多元空间基于结构自身而扩建出的功能性,为日常生活提供了便捷,同时融入美观性,呈现视觉享受。家就像是艺术品,每一个角落都透着惊艳感。




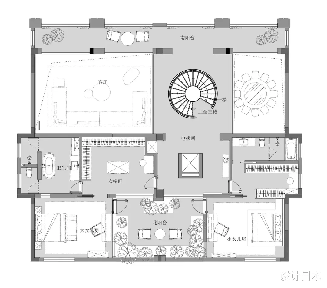
旋转的楼梯犹如跳动的舞步,华丽优雅,呈现生动的景观。上下的天地被旋转连接着,承上启下,形成一个整体。



极简的风格展露着包容万千的豁达,多种元素融入到空间中,构成家的多元魅力。

傲然、永恒、冷清独属居者的栖居之诗
在纯色的背景下,填充亮眼的色彩,带出震撼心灵的美感。彩色的沙发、丰富的雕塑,建立起生活的节奏。



骤然消失的色彩,让一切回归平静,宁静的氛围下藏着不羁的个性,微妙的平衡中包容着多种可能性,家一下变得神秘起来,引起人的好奇心。



走进这座空间,丰富的元素呈现出丰盈的本质,藏在深处的精神缓缓体现出来,寂静下藏着“生人勿近”的傲气。

卧室充满着静谧的氛围,黑白的搭配构造出了视觉上的平和,同时用稳固的气氛让人感受到放松。这片属于主人家的私密空间,正在不断踊跃着治愈的力量。


以白色为主题的空间,并没有产生枯燥的感觉,反而因为内部的核心力量与艺术的表达,与人形成了思想上的碰撞,呼吁着居住者内心的渴望。



