上接系列四: ,法国新一代主力舰的最终设计方案于1932年被接受,敦刻尔克级战列舰随即诞生。

敦刻尔克号战列舰
两艘敦刻尔克级战列舰(斯特拉斯堡号为第二艘)的诞生,源于对主力舰用途的深刻反思。自日德兰海战后,再未出现真正影响战略格局的战列线对决;一战中的海战,除少数例外,多为战列巡洋舰的交锋。进入1930年代,保护法国殖民帝国的海上贸易线变得至关重要,而巡洋舰被认为更适合此任——敦刻尔克级正是为此目的而设计。即便后来面对更重的德国沙恩霍斯特级,其主炮与装甲仍基本够用。

敦刻尔克级两视图
敦刻尔克级基本性能诸元排水量:标准26500吨,满载36380吨尺寸:长215.10米,宽31.10米,吃水8.7米动力:4轴帕森斯涡轮机,6座安德雷锅炉,135600马力,最高航速31节装甲:主装甲带225-280毫米(斯特拉斯堡加强后),防鱼雷隔板30毫米,甲板115-137毫米,炮塔330-360毫米,司令塔330毫米武备:8门330毫米/50倍径主炮(四联装×2),3座四联装+2座双联装130毫米高平两用炮,8门37毫米高射炮,32挺13.2毫米高射机枪,3-4架卢瓦尔130水上飞机舰员:1380人武备:四联装炮塔的创举与代价敦刻尔克级使用的四联装主炮塔设计方案,在一战前的诺曼底级和里昂级建造项目中便已呈现,但这两级别战列舰最终没有任何一艘建成。
主炮塔全布置于前甲板的方案则参考自英国海军纳尔逊级战列舰,不过纳尔逊级在前甲板共有3座三联装主炮塔,而且因主装甲甲板上的装甲重量限制,使得纳尔逊级的第三座炮塔的高度无法超过第二座炮塔,仅第一座与第二座炮塔采用背负式布局排列,造成第三座炮塔的射角受到限制。

纳尔逊号战列舰
相较之下,敦刻尔克级的2座四联装330毫米主炮塔以背负式布局排列于前甲板侧,使所有炮口可毫无阻碍地指向前方,近战时可以小幅度射角对敌方开火。

敦刻尔克级ONI图
敦刻尔克级的330毫米主炮可以每22秒射击一轮。穿甲弹有19.3千克爆炸装药,能够击穿28000米距离的300毫米装甲。这些火炮在23度仰角下射程为23000米,在最大仰角35度下射程为41700米。

敦刻尔克级主炮
它们的最大俯角为5度,可以在任意角度装填,因为炮尾采用液压气动装置。主炮塔可以以1.5度每秒的速度(一分钟90度)旋转。

敦刻尔克级主炮剖视图
然而缺点同样明显:一座炮塔被毁即丧失半数主炮火力。为此,炮塔内部设有25-40毫米装甲隔板,将左右半炮塔分隔;两座前炮塔相距27米(英国纳尔逊级仅19-23米),以降低同时被命中风险。1940年米尔斯克比尔,一枚381毫米炮弹击中敦刻尔克号时,该设计显示了其有效性。

敦刻尔克级主炮
另一个缺点是炮弹散布。不过这仅在全力齐射时才会成为问题。此类齐射通常出现在展示、试航与阅舰式上;在实战中,可通过分阶段射击来规避散布现象。
副炮与防空敦刻尔克级的副炮集中布置在后部,用于防范过于大胆的驱逐舰和轻型巡洋舰进入鱼雷射程。设计者再次研究了纳尔逊级的解决方案,但创新性地采用了兼具反舰与远程防空双重用途的型号——这在当时是全新的。口径定为130毫米,为集中火力,将其安装在三座带装甲的四联装炮塔中:一座轴向布置于机库上方,两座位于舷侧,装甲较薄。

四联装130毫米高平两用炮
但该炮反舰威力偏弱(弹重33.4公斤,初速800米/秒),防空射速仅每分钟10-12发,远逊于美国127毫米/38倍径炮(15-22发/分)。
敦刻尔克号的130毫米高平两用炮在仰角45度时发射33.4公斤炮弹,射程20800米,初速800米/秒;在防空模式仰角75度时,发射29.5公斤钢质高爆弹,初速840米/秒,实用射高15000米。全舰共携带6400发炮弹(每门炮400发),该炮还可发射照明弹。炮塔回转速度12度/秒,俯仰速度8度/秒。

四联装130毫米高平两用炮
小口径防空炮方面,在全自动双联装37毫米ACAD M1935型高射炮(射速每分钟150发)可用之前,法国海军选择了较老的半自动1933年型37毫米炮,总共装八门:四门单装,两座双联装。
该炮射速仅为每分钟15至20发。相比之下,这一射速远低于英国“砰砰”炮(每分钟200发)和标准博福斯40毫米炮(每分钟120发)。

37毫米半自动炮
此外,敦刻尔克级还携带了32挺13.2毫米机枪,安装在四联装枪架上。这些机枪源自久经考验的霍奇基斯型号,亦被日本海军采用。对于20年代的飞机而言,这是一种可靠且足够有效的武器(但在二战中早已过时)。在敦刻尔克级舾装时,弹药由13.2×99毫米改为13.2×96毫米。机枪使用顶部插入的30发弧形弹匣供弹,理论射速每分钟450发,由于更换弹匣和枪管过热,持续射速约为每分钟200至250发。

13.2毫米机枪
火控系统受英国纳尔逊级启发,采用高大的塔楼上建筑,配备多具光学测距仪(最大12米),但缺乏雷达,实际效能有限。
舰载航空机库、弹射器与吊车布局合理。单座弹射器长22米,可360度旋转,能将3.5吨飞机以103公里/小时的速度弹射。吊车起重能力4.5吨。最初搭载三架古尔杜-勒塞尔GL-832 HY水上飞机,后换为两架卢瓦尔130型(机翼可折叠)。

卢瓦尔130水上飞机
卢瓦尔130速度仅210公里/小时,装备两挺7.5毫米机枪及两枚75公斤炸弹,主要用于侦察与反潜。
动力、航速与续航力法国海军很强调敦刻尔克级的航速,因为这些战舰要在任何遭遇德国的德意志级战舰的情况下运用压倒性的火力和航速优势。
敦刻尔克级的推进系统为四轴四桨,由帕森斯齿轮传动涡轮机驱动,蒸汽来自6座安德雷锅炉。动力装置分为四个机组、五个舱室,这种分散布置的创新在于:单发命中无法瘫痪全部动力,锅炉舱与涡轮机舱之间的厚舱壁也能有效防止进水。
额定功率112500马力,设计航速29.5节。1936年对敦刻尔克号、1938年对斯特拉斯堡号的航速测试表明,两舰均能维持31节。
最大燃油容量为4500至5000吨,实战中限制为3700吨(留空舱用作反潜防护)。15节时续航力7850海里,28节时降至2450海里。
海试发现单烟囱的烟雾会干扰舰桥,1938年两舰加装了“蜗旋”式烟囱帽。在1939-1940年冬季的大西洋航行中还发现,两舰在恶劣海况中上浪严重,与德国沙恩霍斯特级问题相同,但未来得及改装“大西洋”舰艏。
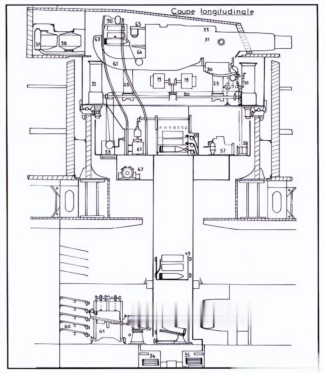
装甲防护在装甲防护上,敦刻尔克级的装甲重量相当于预计排水量的35.9%,这在当时的战列舰中是最高比例,连当时英国最先进的纳尔逊级也仅占预计排水量34%。在装甲布局上,本级舰采用重点防护概念。


装甲分布示意图
主装甲带长126米(占舰长60%),厚225毫米;前部横向舱壁厚210毫米,后部180毫米;上层装甲甲板125毫米,下层仅40毫米。
司令塔正面270毫米,后部220毫米,顶部210毫米。主炮塔座圈由310毫米装甲保护,炮塔正面为30度倾斜的330毫米,后部345毫米;背负式炮塔正面335毫米,顶部150毫米。副炮塔座圈120毫米,炮塔正面135毫米,后板80毫米。
建造期间,海军最高委员会要求加强斯特拉斯堡号的防护。其装甲带增至283毫米,前部横向舱壁加厚至260毫米,后部至210毫米;主炮塔座圈厚340毫米,正面360毫米,后部352毫米(A炮塔)和342毫米(B炮塔),顶部160毫米。这使排水量增加749吨,防护占比升至37.2%。
水下防护采用创新的“三明治”式多层隔板与填充舱:从外向内依次为填充“硬橡胶泡沫”的1.5米高舱室、0.9米填充舱、3.9米燃油舱(10毫米隔板)、0.7米空舱,最后以30毫米特种钢板防鱼雷隔板结束。总宽度达7.5米,远超当时战列舰不足5米的水平。在1940年7月米尔斯克比尔战斗中,敦刻尔克号附近被14枚水下炸弹命中,该防护体系证明有效,未造成损坏。
敦刻尔克号服役及作战历史敦刻尔克号于1932年12月24日在布雷斯特铺设龙骨,1935年10月下水,1937年5月服役,刚服役即代表法国参加英王乔治六世加冕阅舰式。

下水中的敦刻尔克号
1938年1月进行横跨大西洋巡航,访问西印度群岛与达喀尔,7月停靠敦刻尔克城。1938年9月正式加入大西洋分舰队任旗舰。苏台德危机与西班牙内战期间,曾搜索德国袖珍战列舰。

1938年的敦刻尔克号
1939年9月二战爆发后,敦刻尔克号成为“突袭部队”核心,与斯特拉斯堡号及英国舰艇合作,在南大西洋和北大西洋搜寻德国袭击舰,并于12月将法国黄金储备运往加拿大。1940年初,因意大利态度不明,突袭部队移师地中海。4月曾短暂北返应对德国入侵挪威。
6月法国溃败后,英国担忧法国舰队落入轴心国之手,发起“弩炮行动”。1940年7月3日下午,英国H舰队在米尔斯克比尔外对法军下达最后通牒:要么加入英军,要么自沉。

1940年敦刻尔克号停靠在米尔斯克比尔,舰首朝向悬崖
谈判拖延期间,英军开火。敦刻尔克号当时舰首朝向悬崖停泊,无法机动,在16000米外被4发381毫米炮弹命中:B炮塔被毁,冲击波杀死全部人员;右侧副炮瘫痪;航空机库与弹射器受损;一发命中热力管线,导致全舰失去电力。为避免沉没,舰长将其操纵至港口另一侧搁浅。

敦刻尔克号在圣安德烈小镇附近搁浅
7月6日,英军再次空袭。一架剑鱼式鱼雷机击中了停靠在敦刻尔克号旁边的一艘辅助巡逻艇,该艇携带的深水炸弹爆炸,在敦刻尔克号船体上炸开一个大洞,造成200余人伤亡。

被深水炸弹爆炸炸开的大洞
此后敦刻尔克号一直搁浅在米尔斯克比尔,直到1942年2月才勉强修复驶回土伦,但再未恢复现役。1942年11月27日,德军占领土伦,她仍在干船坞中维修,最终被船员凿沉。
斯特拉斯堡号:奇迹般的逃脱与维希旗舰斯特拉斯堡号于1934年11月25日在卢瓦尔河船厂铺设龙骨,1936年12月下水,1939年4月服役。

1939年6月,斯特拉斯堡号与远处的敦刻尔克号停靠勒阿弗尔
二战爆发后,斯特拉斯堡号加入以达喀尔为基地的Y部队,与英国航母竞技神号配合,在佛得角附近搜索格拉夫·斯佩海军上将号。1940年4月随突袭部队转至地中海。

停靠米尔斯克比尔的斯特拉斯堡号(中间)及敦刻尔克号(前部)
1940年7月3日米尔斯克比尔:斯特拉斯堡号舰长科利内事先周密准备——锚链已拆卸、主机保持温暖——得以在英军开火后迅速启航。她奇迹般地未被命中,并在五艘驱逐舰护航下冲出入港航道,躲过了英军预先布设的磁性水雷。胡德号与皇家方舟号的飞机全力追击,但斯特拉斯堡号以28节航速向东北疾驰,利用夜幕最终摆脱,于次日抵达土伦。这一逃脱使斯特拉斯堡号成为维希法国海军的事实旗舰。

成功逃离米尔斯克比尔的斯特拉斯堡号
由于燃油严重受限(留给轴心国),斯特拉斯堡号大部分时间停泊在港内。1940年11月曾护送临时修复的普罗旺斯号战列舰(布列塔尼级的2号舰,参见系列二)返回土伦。1942年初,她成为法国第一艘安装雷达(电磁探测设备)的战舰。
1942年11月盟军在北非登陆后,德军迅速占领自由区,并于11月27日冲入土伦港。早有准备的法国舰队打开通海阀并引爆爆破炸药,斯特拉斯堡号在船员撤离后自沉。

在土伦港自沉的斯特拉斯堡号
据记载,沉没过程中部分炮手仍向德军车辆开火,并遭到德军坦克还击,造成1名军官阵亡、6名水兵受伤。

经典画面:斯特拉斯堡号与4号坦克同框
此后,意大利人试图打捞并修复她,但未能成功。1943年7月17日,其船体被打捞起准备拆解。1944年8月盟军在普罗旺斯登陆前,土伦遭美军空袭,已搁浅的斯特拉斯堡号再次被炸弹命中沉没。1945年她再次被打捞,用作靶舰进行水下爆炸测试,最终于1955年5月拆解。

遗照:1952年的斯特拉斯堡号