摘要:补给活动为完成任务提供所需的物资装备,是提升士兵生活质量的关键保障。下文依据美军条令《补给保障活动作业》(ATP 4-42.2),对美军后勤补给保障活动进行相关介绍。
关键词:美军后勤、补给、补给保障活动、物资管理

根据美军《联合出版物4-0:联合后勤》(JP 4-0)的定义,补给指物资的采购、分发、在储存期间的维护以及回收处置活动,并包括对物资种类和数量的确定。补给的五项主要职能包括:接收物资、储存物资、发放物资、回收上交物资以及补给问责管理。
补给保障活动(SSA)指通过提供各类补给物资,为旅、营、作战保障部队及其他单位提供保障支援,以维持作战人员持续作战能力。

补给职能及其在补给体系中的关系
每次补给保障活动都必须做好随时适应驻地变化的准备,并充分认识每次部署及各个场址的特点。熟悉地形情况是有效规划的关键。在缺乏道路、建筑物等基础设施的荒地规划补给保障活动时,必须综合考虑安全、防护以及自然地形条件。如条件允许,应派先遣小组开展场地勘察,评估可用于建立补给点的空间条件。必须识别各类风险隐患,包括敌情活动、事故、天气或环境因素等,以防止人员伤亡、装备损毁或任务失败。若无法进行实地勘察,也可采用地图侦察方式进行评估。如果选定场址需长期使用,可能需要与工兵部队协同开展地形分析。选址时必须评估诸如可用空间、排水条件、道路通行能力、现有设施以及地形防护条件等因素。
储存地布局考量
补给保障活动的建立首先从制定野外布局方案和仓储布局方案开始。野外布局方案包括:
●划定、标识并严格执行车辆与人员的通行路线。
●在出入口设置管控措施,以控制交通流量。
●在入口附近划设停车区,以管控进入仓储区的人员和车辆。
仓储布局方案包括以下内容:
●划分接收、储存和发放等功能区域。
●确保作业流程和人员动线尽量简化,并呈直线式布置。
●将同类物资集中存放,以简化储存和发放作业。
●将周转频繁的物资布置在靠近发放点的位置。
●将重型或大型物资布置在靠近发放点的位置。
●针对天气损坏、破损以及安全隐患等问题提前进行规划与防范。
野外布局方案和仓储布局方案还必须将环境因素纳入考虑。需要关注的环境问题包括:
●环境健康风险,以及支撑环保要求的基础设施的状况。
●地形和天气对行动的影响。
●当地存在的工业、农业类型及自然资源状况。
●可能产生危险品或危险废弃物的工业或农业类型。
●可能成为冲突诱因的特定环境问题(如水资源、石油、矿产权益等)。
●可能遭受恐怖袭击的目标及其预期破坏后果。
●化学、生物、放射性及核(CBRN)防护相关因素。
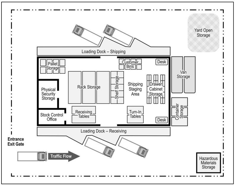
无论是大型战区拆零分拨点,还是小型战术补给点,在制定野外布局方案时都遵循相同的基本原则。下图展示了一份野外补给保障活动布局示意图。在该示例中,补给保障活动部署在一片有少量树木、除主干道外无其他道路的区域。在选址过程中,应评估是否需要工兵部队通过场地平整、排水改善和修筑道路等方式对场地进行工程准备。相关人员必须根据作战环境灵活调整布局方案。

补给保障活动野外布局的概念方案
分散部署原则
分散部署是补给保障行动中的一项关键原则,能够在多种作战环境中提升行动的生存能力与灵活性。在开展补给保障行动时,指挥员和规划人员必须充分考虑地形因素,以确保能够有效进行分散部署以提升生存能力。指挥员必须权衡“分散/生存能力”与“集中/效率”之间的取舍关系。分散部署会延长完成补给指令所需时间,并需要投入更多人力进行防护警戒。若各要素集中部署,则在物资拣选和发放方面效率更高,同时用于警戒防护的人力也较少。指挥员必须评估哪种方案最有利于支援机动作战部队。
●可及性:地形会影响分散单元之间保持联络与通信的难易程度。
●可视性和隐蔽性:山丘、山谷和植被等地形要素会影响分散单元的可视性和隐蔽性。
●防御性:具备天然防御条件的地形(如高地或障碍物)可增强分散单元抵御敌方攻击的能力。
●后勤元素:复杂地形可能需要额外的运输和通信资源,从而影响补给行动效率。
●天气:地形可能加剧包括天气在内的环境因素,从而影响分散部署行动的效果。例如,山区暴雨可能引发泥石流,从而影响分散单元的机动和行动能力。
仓储作业流程
仓储空间是所有补给保障活动的最关键资源。由于可用空间通常有限,补给保障活动必须最大限度地利用所有可用空间。平面布局图是用于展示仓储区域、货架和货柜排列方式的蓝图或布局示意图,有助于管理库存,并提高物资或装备的取用速度。
补给点的布局必须组织有序、管理规范,并尽量减少内部物资的搬运次数和流转距离。场址规划人员在制定野外仓储布局方案时,应充分设想日常保障作业流程。应绘制场区草图,标明各功能空间用途(如接收区、发运区、危险品储区、露天堆场、办公区)以及存储物资类别(如维修备件、工程材料、整件装备)。草图中还应标明厕所和办公区位置。每次部署情况各不相同,每个补给点的布局也应有所区别。仓储布局应根据其在作战区域内的具体位置进行相应调整。

野外仓储布局示意图
储存类型
单个储存类型是仓储区域内一种独立的功能区域,其特点由所占空间形式及组织方式决定,可以由一个或多个储位(货格/库位)组成。储存类型本质上相当于库存物资在仓储场所中的“地址编码”。储存类型包括:托盘式储存、货架式储存、立体货架储存、露天堆场储存、抽屉/柜式储存、危险品储存(危化品储区)、集装箱式储存、厢式车/车载式储存等。

包含不同储存类型的储存区示意图
1.帐篷式仓储
补给保障活动可能在没有永久性仓库或棚舍设施的地区展开部署。典型的帐篷布局包括作业区、托盘储存区、货架储存区、提货区,以及存放消防器材的消防点。帐篷内所需的储存器具数量与类型、可储存物资数量以及作业区域面积,取决于所保障单位的规模和需求。需要注意的是,每次建立补给点的条件都可能不同,并不存在统一的标准化布局。在规划帐篷式仓储区时,应考虑以下事项:
●设置受控的出入口以保障物资安全,并确保该出入口不作为紧急疏散通道使用。
●预留空间放置长桌,用作办公台、作业台或打包区域。
●将高周转物资存放在靠近作业区的位置。
●将低周转物资及易被盗取物资存放在帐篷后部区域。
●将重型物资存放在靠近发放点的位置。
●在帐篷外围开挖排水沟,以防止积水损坏物资。
●应确保排水沟向远离帐篷方向倾斜,使积水不会倒流,并能顺畅排出。

帐篷式储存布局
2.厢车式仓储
应规划车载仓储布局,以最大限度利用车内空间。物资分配的空间大小应根据其尺寸和形状确定。将高周转物资存放在靠近车门入口的位置。将低周转物资及易失窃物资存放在车厢后部的受控区域。如果车辆未配备防止货物移动的固定装置,应自行采取绑扎或加固措施固定物资。

3.库位储存
库位(bin)是某一储存类型内部物资实际存放的具体位置,指仓库内可用于存放物资的最小可用空间单元。托盘储存、货架储存、立体架储存、露天堆场储存、抽屉/柜式储存、危险品储存、集装箱储存、车辆储存以及实体安全储存等各种储存形式均可细分为库位储存。为某一物资分配的库位空间取决于其包装尺寸以及储存数量。

库位储存示意图 库位储存示意图
库位储存遵循的一些原则如下:
●将小批量物资放置在中部位置,使多数物资处于胸部高度,便于快速拣取。
●将重型或大型物资放在底层,并把周转最慢的物资放置在该层底部。
●将轻型但体积较大的物资放在上层,并将周转最慢的物资放在该层顶部。
●如条件允许,应沿墙面并排布置单排货架。
●在有顶棚的储存区内,可利用立柱和支撑柱作为库位分界,以避免空间浪费。
●不同物资不得混放在同一库位。
●小件或散装物资应装箱存放,而不是直接放置在货架上。
物资搬运装备
在仓储作业中会使用多种不同类型的物资搬运装备。搬运装备既有动力型,也有非动力型。在确定何种搬运装备最适合具体作业任务时,应综合考虑设备的载重能力与功能特性、储存区域的结构条件以及仓储区域布局情况。
1.叉车
叉车用于提起、搬运和堆垛各类物资与装备。叉车型号的选择取决于载荷重量和作业地形条件。轻型叉车额定载重2000磅,最大起升高度100英寸。轻型叉车可采用汽油或电力驱动,并配装实心或半实心橡胶轮胎。可在室内及顶部净空高度较低的区域使用。
越野叉车根据型号不同,载重能力为4000至10000磅。其配备高浮力充气轮胎,可在未硬化或未整备地面通行,适用于野外作业区域。越野叉车主要用于装卸平板半挂车以及堆垛大型、重型货物。
仓库牵引车是一种汽油或电动驱动的车辆,用于牵引一辆或多辆仓库拖车。其牵引力范围为2000至7500磅,配备实心橡胶或充气轮胎。轻型电动仓库牵引车牵引力为2000磅,采用实心橡胶轮胎,可以在封闭仓库内使用。由于无尾气排放,其也可用于运输食品物资,适用于仓库及冷藏区的轻载运输。中型仓库牵引车为汽油驱动,牵引力4000磅,配备充气轮胎,可在室外仓储区域执行通用牵引任务。中型仓库牵引车具备足够的动力和附着力,可在各种地面上作业。与仓库牵引车配套使用的仓库拖车是一种装有充气轮胎的载货平台,其常规载重范围为6000至20000磅。重型拖车的后轮安装在刚性车轴上,承载约三分之二的重量,因此适合运输超大件货物及在崎岖地面使用。

叉车类型
2.越野型集装箱装卸车
越野型集装箱装卸车是一种专用起重车辆,用于搬运国际标准化组织(ISO)标准集装箱。下图展示了一种越野型集装箱装卸车(通常简称RTCH)。该车辆可将集装箱放置到卡车车厢或集装箱拖车上,也可在堆场内将集装箱堆码至最高三层。在岸边作业时,该装卸车可涉水行驶,最大水深可达车轮轮毂高度。

RT240越野型集装箱装卸车
3.输送机
输送机用于沿固定路线输送物资,主要用于卡车和铁路货车的装卸作业。在大多数仓储作业中,主要使用三种类型:重力滚筒式、动力滚筒式和滑轮式输送机。滑轮式输送机因重量轻、安装简便且便于搬运,使用最为广泛。
4.手动装卸车
手动装卸车配有两根承载货叉,可升起约4英寸以托举托盘货物。手动装卸车用于搬运无需堆垛的托盘货物,以及短距离转运作业,可在叉车无法机动的狭小空间内操作。
5.平板手推车
该车主要用于短距离、多次停靠的搬运作业。平台车主要有两种基本类型:两轮式和四轮式。